
最寄り駅:阪神神戸線「打出」駅/ 面積:127.41 m2
お問い合わせ(神戸岡本店)tel.0120-01-6855 メール 見学予約
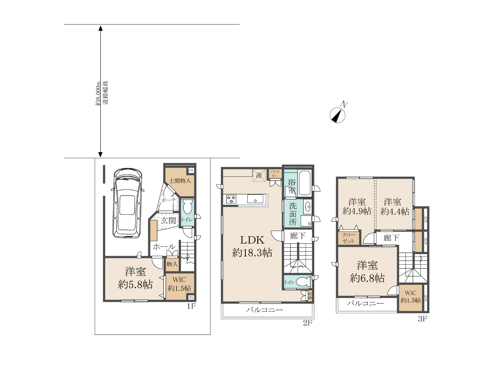
2026年3月完成予定の長期優良住宅!
駅徒歩7分、阪神高速へもアクセスしやすい立地の新築戸建て。
敷地を活かした建築プラン。
LDK約18.3帖でガレージ付き。




駅周辺にスーパーやコンビニ、喫茶や飲食店が集まるエリアです。
43号線も近い便利な立地ですが、前面道路は幅員8mと広く
車通りも少なめなため落ち着いた生活を送れます。
阪神神戸線
「打出」駅
徒歩 約7分
JR東海道本線
「芦屋」駅
徒歩 約22分

ダイエー東芦屋店まで359m 徒歩5分

夙川グリーンプレイスまで971m 徒歩13分

芦屋市立精道中学校まで491m 徒歩7分
| 物件の所在地 | 兵庫県芦屋市打出町 |
|---|---|
| 交通の利便 | 阪神「打出」駅 徒歩7分 |
| 価格 | 6,480 万円 |
| 間取 | 4LDK |
| 建物面積 | 127.41㎡ |
| 土地面積 | 73.93㎡ |
| 私道負担 | なし |
| 建ぺい率 | 60% |
| 容積率 | 200% |
| 建物構造 | 木造 |
| 築年月 | 2026年3月予定 |
| 水道・ガス | 上下水道、都市ガス |
| 現況 | 未完成 |
| 土地権利 | 所有権 |
| 市街化区域 | 市街化区域 |
| 用途地域 | 第一種住居地域 |
| その他法令上の制限 | 宅地造成工事規制区域、制限表面区域(大阪国際空港) |
| 建築確認番号 | 技建認第2025-00716号 |
| 小学校区 | 打出浜小学校区 |
| 中学校区 | 精道中学校区 |
| 引渡時期 | 相談 |
| 取引態様 | 媒介 |
| 情報登録日 | 2025/10/29 |
更新日:2025/11/08 次回更新予定日:2025/11/30
※ 図面と現況が異なる場合は、現況優先と致します。
※広告物件は、掲載中に売却済、売却中止、価格変更となる場合があります。
※ 成約の際は仲介手数料とこれにかかる消費税が必要です。(当社が売主の物件除きます)
| 支店名 | 神戸岡本店 |
|---|---|
| 住所 | 神戸市東灘区岡本1丁目10-23 |
| 電話番号 | 0120-01-6855 |
| 広告主の名称 | カラーズアソシエイト株式会社 |
| 免許証番号 | 国土交通大臣(2)第9084号 |
| 所属団体 | (公社)全日本不動産協会 /(公社)不動産保証協会 |